AIM:How we create COBie from PDF’s
We have for years been faced with building Asset Information Models with very rough data. From scanned handover drawings, PDF scan, PDF vector ,Plot Files, 2D Cad. Even today with the wider use of 3D Building Modeling we are having to use our tools built developed over years the years.
Our journey with BIM is probably longer than most, I personally started with a 3D cad system called Ginger on a PC in the 1980’s and in 88 moved to the newly released Sonata.
ToDay we can create COBie data sets from PDF’s when we want the information equivalent to Data Drop 1 (MoJ version) / PAS 1192 part 2 (4. design). In the COBie schema this relates to Facility/Floor/Space/Coordinates(Floor & Space).

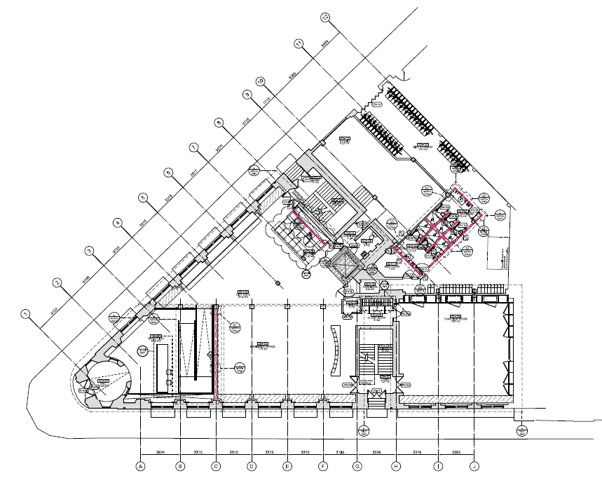
In our AIM model we wanted to create a floor outline and a space outline so that we could display a floor as a graphical plan.

If you not familiar with Cobie.Coordinates then this data set allows you to create a set of coordinates and reference them to another data set.

Some may say we are not conforming to a strict specification but what they should bear in mind is that schemas are frameworks to work within in. (There is a suggestion that the Coordinate sheet will be removed from the next version of COBie. If this happens then we would store the coordinates or even the polygons in attributes or reference a data file in documents.)
To generate the dataset we have created an AutoCAD plugin that exports to the Cobie spread sheet format . The first stage is to create a new drawing, import the PDF, scale the PDF to real world units. (Each drawing needs to use the same building origin and we do this by xrefing the first drawing to subseqent floors ensuring they all then line up.)
We create layers for the Floor outline, spaces, space codes, and space description. Once this process is complete we can run the plugin to export the COBie dataset.

The application allows you to set your Contact details and those of the Facility and Floor which are then stored with the DWG file. When you run the exporter it will report any errors such as spaces without codes or descriptions. It can also handle spaces within spaces.
Next stage is the location of assets and their Types which equates to Drop 2 where we are populating Cobie.Type and Cobie.Component Cobie.coordinate and Cobie.Attribute. We create a layer called assets and placing a simple block with some attributes.

When we run the exporter we it will populate the Cobie.Type, Cobie.Component and Cobie.Coordinate and any attributes in the block will be referenced in Cobie.Attribute.

Using the Update all spaces the Component unique name can be added back to the block so that further updates do not renumber components in the exports.
Now we have CObie files for each floor we can load them into are AIM application.
We call this exporting of floors and space geometry the jelly mould. We have developed a plugin for Revit that uses the Area for a floor plan and then the first loop for spaces/rooms and exports all the floors into one CObie file.
My next blog will show how in our AIM application we build up and coordinate more informatiion using the templater and product library web applications.Starting with getting cobie from Revit Families.